武汉装修网

0371-58610011

装饰公司

  • 装饰公司
  • 家居建材
  • 设计师
  • 工长工人
  • 效果图
  • 搜文章
  • 搜产品
  • 搜视频

经济实惠装修设计:靓妹6万搞定70平二手房装修

发布日期:2016-04-09

靓妹6万搞70平米二手房空间 经济实惠装修案例,本套案例的业主是一个刚毕业参加工作的靓妹,这套二手房是父母送给她的礼物,但是装修也是相当实惠的,整体花费6万,也算经济装了。

70平二手房装修装修设计效果图

现在爸妈也不经常来,基本上都是我一个人住,每天一下班回到小家里感觉特别温馨,虽然只是个小户型。但是,还是会为有了一个独立的空间而开心的。

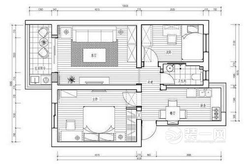
70平两居室户型图

70平二手房装修装修设计效果图

进门处小小的空间我们放了一个小餐桌,刚好够三个人一起吃饭,但是大多数时候我一个人是不做饭的,上班也累,就自己随便买点吃的。

70平二手房装修装修设计效果图

70平二手房装修装修设计效果图

我家的小贝贝,自从搬进小家,它每天就自己在家里玩,双休日我们一起出去逛。

70平二手房装修装修设计效果图

客厅空间还稍微大一点,沙发茶几什么的都是老爸老妈抽空去买的,真的是太感谢他们了。

70平二手房装修装修设计效果图

沙发到现在还没有揭去塑料薄膜,打算铺上一块漂亮的毯子。

70平二手房装修装修设计效果图

电视背景墙设计师设计的很简单,墙面上贴的壁纸,用方框框上显得也稳重。

70平二手房装修装修设计效果图

听爸爸说地板买的不便宜,因为质量也好,貌似500元一平。

70平二手房装修装修设计效果图

呵呵,爸妈选的装饰花,我看起来总觉得不好看,有空我就去买点好看的。

70平二手房装修装修设计效果图

我很喜欢卧室地板的纹理,很有质感,很有分量的感觉。

70平二手房装修装修设计效果图

这个卧室设计也简单,很大方的整体样式。

70平二手房装修装修设计效果图

主卧主要是爸妈有空过来就住住。

70平二手房装修装修设计效果图

床旁边放一个旧的电脑桌,对他们来说基本无用,就是放点杂物了。

70平二手房装修装修设计效果图

这就是本小姐的房间啦,现在还没完全把我的东西搬过来,所以现在桌子上看起来还有点空。

70平二手房装修装修设计效果图

70平二手房装修装修设计效果图

有了自己的小家,感觉洗澡真是太方便了,租的房子里人多总要等。

70平二手房装修装修设计效果图

上述内容为转载或编者观点,不代表装一网意见,不承担任何法律责任。如侵权请联系删除。
如何挑选装修公司,大数据来帮你!

免费设计在线报价

结合当地市场,大数据实时分析计算

手机版

小程序

公众号