武汉装修网

0371-58610011

装饰公司

  • 装饰公司
  • 家居建材
  • 设计师
  • 工长工人
  • 效果图
  • 搜文章
  • 搜产品
  • 搜视频

晒晒我的103平新家施工 装修真的没那么简单!

发布日期:2016-12-14

户型:三室两厅一厨一卫

面积:103㎡

造价:9.1万

风格:北欧

装修这种事情真的是很奇妙,无论你之前看过多少知识、指南、注意事项,等你真正在装修中遇到问题的时候,那些妙招、解决办法都变成一片空白了。但如果你找的装修团队靠谱,那自然就省心得多,也不用担心这弄得不好,那做得不满意!

我们夫妻俩对新家装修有一点特别重视,就是一定要简单,当然我说的简单不是随便刷刷墙,贴贴砖,放放家具就行。而是需要精心地设计,让家看起来很休闲,很舒适,但必备的功能一个也不少。

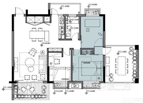
下面先上我家的平面设计图,看一下房间的布局。

我家的户型很规整,空间上不用做太大改动,考虑到物品收纳的问题,进门玄关、主卧、次卧都做了收纳设计。

整体的装修效果我们真的很满意,设计师基本上满足了我们提出一些想法。

在这里,我想提醒还没装修的朋友们,如果你已经有了自己的装修想法,但设计师告诉你没法实现的时候,也不用太在意。有的装修也许适合别人的房子,但并 不一定适合你的房子,如果在现实中不可行的,还是建议不要一意孤行。

水电

水电施工的时候,去现场看了下,家里布满了蓝色和红色的线管,据说是用来区分强弱电的,红色管内是强电电线,蓝色管内是弱电电线。

再去的时候师傅已经用水泥封槽了。注意,封槽是必须的,一定不能少,如果让线管裸露着,在后面的施工过程中,线管很容易被磨损,里面的电线也极可能会 受损。

泥木

朋友家用的轻钢龙骨,虽然不会受潮、变形,但是不方便做造型。木龙骨做好后刷了防潮、防火、防腐的涂料,这一点也是很重要的,师傅还在螺丝上也涂上了 防锈漆,防止螺丝生锈。

油漆

墙面先是批刮腻子、用沙皮打磨平整清除表面浮尘,然后刷底漆,最后滚刷乳胶漆。墙面刷漆的时候,师傅特别仔细,那时候我觉得有一个靠谱的施工团队真的 是太重要了。

竣工验收

硬装完成大概花了2个月,完工后我们将墙面、地面、水电、门窗都检查了一遍,一次过关,选择我爱我家网就是省心省力。

软装都是结合设计师的建议和装修风格自己搭的。

客厅装修实景图

客厅视线的焦点主要集中在沙发和两幅装饰画上。墙面尽量保持简洁,用充满艺术感的装饰画凸显居住者的品味。

卧室装修实景图

主卧延续客厅的风格,以深灰色为主色调,搭配暖黄的灯光,营造舒适静谧的睡眠氛围。衣柜的收纳性强,足够装下两个人的衣物,而且开放式衣柜令卧室看起 来没那么狭小。

儿童房装修实景图

儿童房装了一面大镜子,起到扩大视觉空间的效果,房间内壁纸、桌椅、地毯充满了童趣。

餐厅装修实景图

餐厅与客厅隔了一个走道,占用空间小,看起来又美观。厨房是开放式的,酒柜与厨房隔着走道,设计师巧妙地将和吃喝有关的空间划分在一个区域,空间布局 十分清晰。

卫生间装修实景图

卫生间色调统一,布局规划上协调规整,物件的摆放基本呈L形,清爽利落。

上述内容为转载或编者观点,不代表装一网意见,不承担任何法律责任。如侵权请联系删除。
如何挑选装修公司,大数据来帮你!

免费设计在线报价

结合当地市场,大数据实时分析计算

手机版

小程序

公众号